









物件番号 | 2509-01-03 |
---|---|
所在 | 鹿児島県指宿市山川成川字川尻7343番地 |
掲載種別 (売却/賃貸) |
売却のみ(土地と建物) |
価格 (売却/1か月賃料) |
1,500,000円/- |
賃貸のみ:初期費用(敷金など) | |
建設年 | 1965年(昭和40年) |
増改築年 | 1996年(昭和8年) |
増改築詳細 | 風呂 |
空き家化の時期 | 不明 |
空き家後管理状況 | 不定期で管理している |
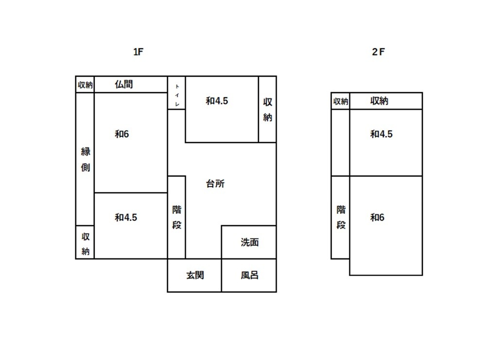
土地面積 (建物面積) | 442.94m2 (115.15m2) |
間取り | 5K |
構造・階数 | 鉄筋コンクリート・2階 |
入居可能時期 | 2025年 |
電気 | 引込み済み |
---|---|
ガス | プロパンガス |
水道 | 上水道 |
下水道 | 浄化槽 |
キッチン | ガス |
トイレ | 水洗・洋式 |
お風呂 | ガス |
冷暖房 | あり |
駐車場 | 1台 |
物置など | あり |
その他 |
家財の有無 | あり |
---|---|
補修について | 多少の補修必要 |
補修の費用負担 | 入居者負担 |
物件について | 桐原不動産 TEL 0993-24-4159 住所 指宿市十町136-3 |
---|---|
制度やその他について | 指宿市役所 企画政策課 地域創造係 TEL 0993-22-2111(内線2622) 住所 鹿児島県指宿市十町2424 |