| 物件番号 | 2602-12-01 |
|---|---|
| 所在 | 指宿市開聞川尻字小サ口5356番地3 |
| 掲載種別 (売却/賃貸) |
売却のみ(土地と建物) |
| 価格 (売却/1か月賃料) |
8,000,000円/- |
| 賃貸のみ:初期費用(敷金など) | |
| 建設年 | 1980年(昭和55年) |
| 増改築年 | |
| 増改築詳細 | |
| 空き家化の時期 | 2025年(令和7年) |
| 空き家後管理状況 | 1か月に1度程度空気の入替等を行っている |
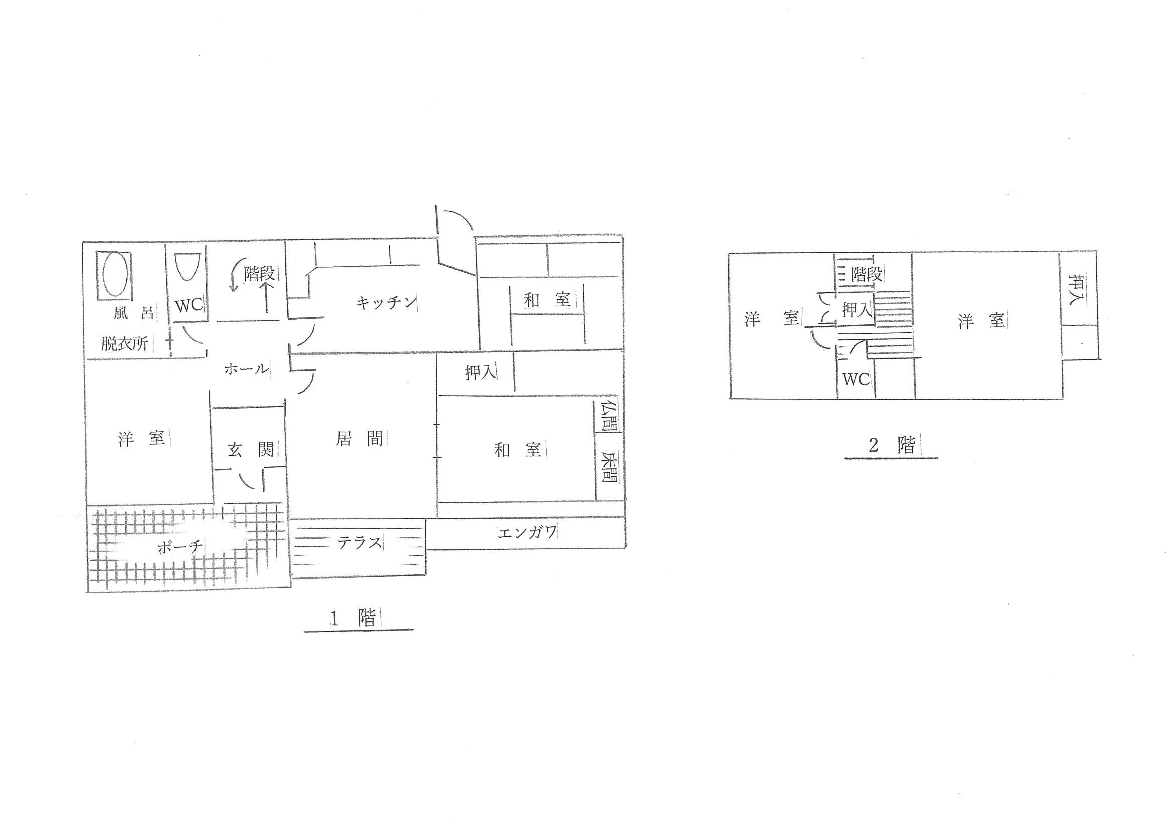
| 土地面積 (建物面積) | 656.83m2 (119.12m2) |
| 間取り | 6DK |
| 構造・階数 | 鉄筋コンクリート・2階 |
| 入居可能時期 | 要相談 |
| 電気 | 引込み済み |
|---|---|
| ガス | プロパンガス |
| 水道 | 上水道 |
| 下水道 | 浄化槽 |
| キッチン | ガス |
| トイレ | 水洗・洋式 |
| お風呂 | 灯油 |
| 冷暖房 | 要相談 |
| 駐車場 | あり(車庫に2台分) |
| 物置など | あり(車庫) |
| その他 | 隣接する土地(畑:379m2)も売買額に含む |
| 家財の有無 | あり |
|---|---|
| 補修について | 補修は不要 |
| 補修の費用負担 | 入居者負担 |
| 物件について | 永吉不動産 TEL 0993-35-3456 住所 指宿市山川小川35-2 |
|---|---|
| 制度やその他について | 指宿市役所 企画政策課 地域創造係 TEL 0993-22-2111(内線2622) 住所 鹿児島県指宿市十町2424 |