| 物件番号 | 2602-09-03 |
|---|---|
| 所在 | 指宿市十二町字大西637番地 |
| 掲載種別 (売却/賃貸) |
売却のみ(土地と建物) |
| 価格 (売却/1か月賃料) |
3,500,000円/- |
| 賃貸のみ:初期費用(敷金など) | |
| 建設年 | 1956年(昭和31年) |
| 増改築年 | 1981年(昭和56年),1991年(平成3年) |
| 増改築詳細 | 物置増築,風呂増築 |
| 空き家化の時期 | 2017年(平成29年) |
| 空き家後管理状況 | 数か月程度に1度空気の入替等を行っている |
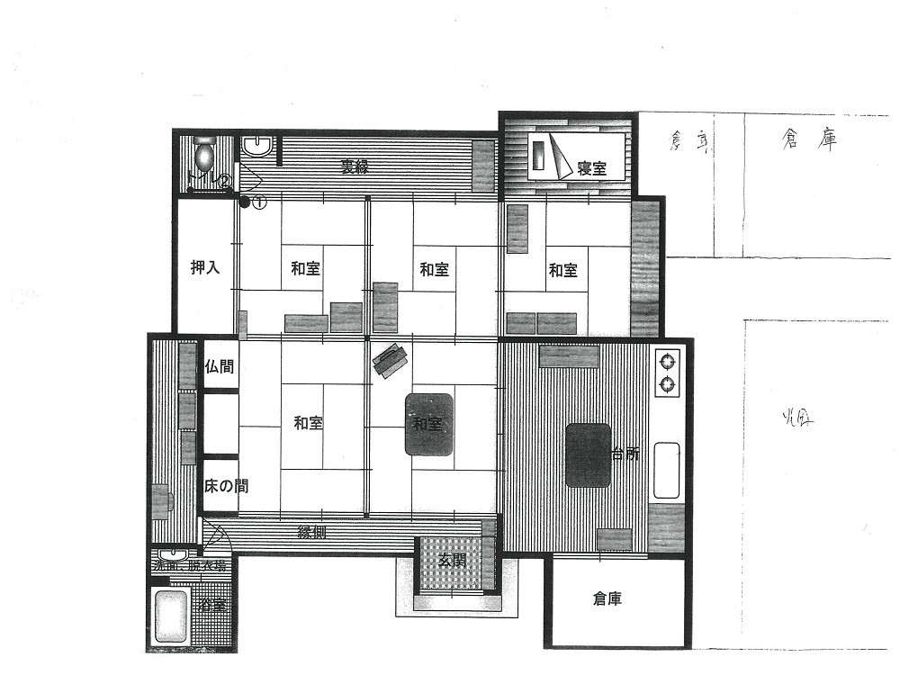
| 土地面積 (建物面積) | 266.93m2 (102.83m2) |
| 間取り | 6DK |
| 構造・階数 | 木造・平家 |
| 入居可能時期 | 即日 |
| 電気 | 引込み済み |
|---|---|
| ガス | プロパンガス |
| 水道 | 上水道 |
| 下水道 | 下水道 |
| キッチン | ガス |
| トイレ | 水洗・洋式 |
| お風呂 | ガス |
| 冷暖房 | あり(2台) |
| 駐車場 | 1台 |
| 物置など | あり |
| その他 | 現況有姿渡し希望,再建築不可 |
| 家財の有無 | あり |
|---|---|
| 補修について | 多少の補修必要 |
| 補修の費用負担 | 入居者負担 |
| 物件について | 堀之内不動産 TEL 0993-25-3122 住所 指宿市西方2165 |
|---|---|
| 制度やその他について | 指宿市役所 企画政策課 地域創造係 TEL 0993-22-2111(内線2622) 住所 鹿児島県指宿市十町2424 |